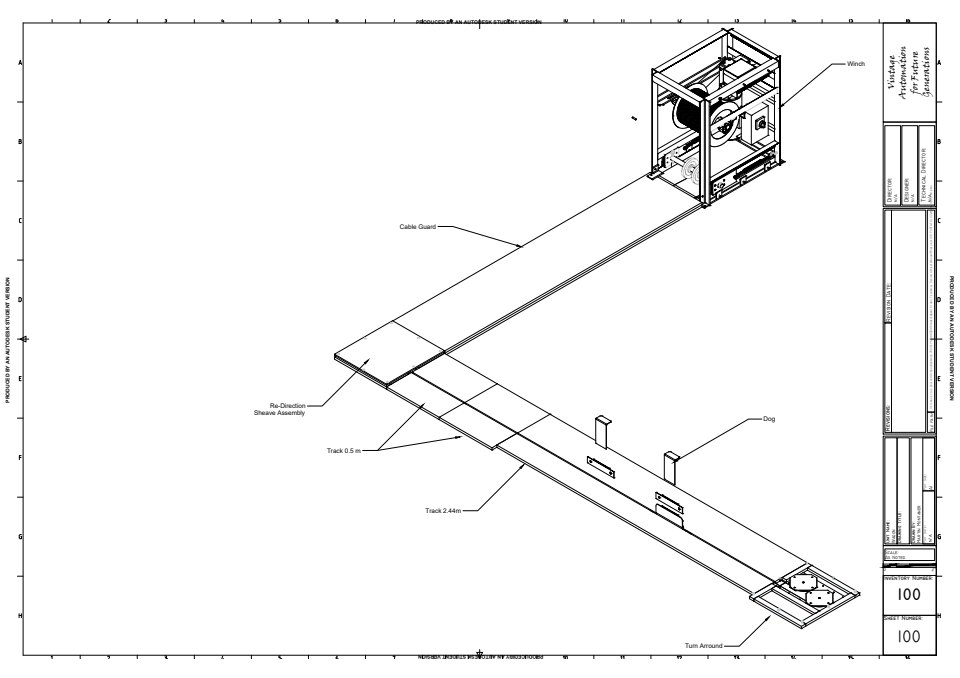
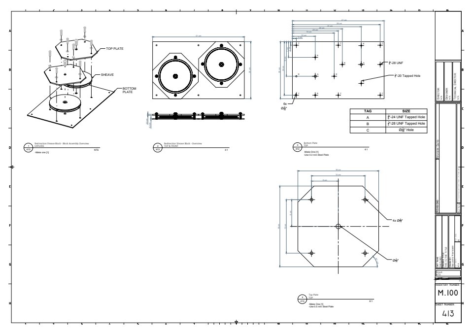
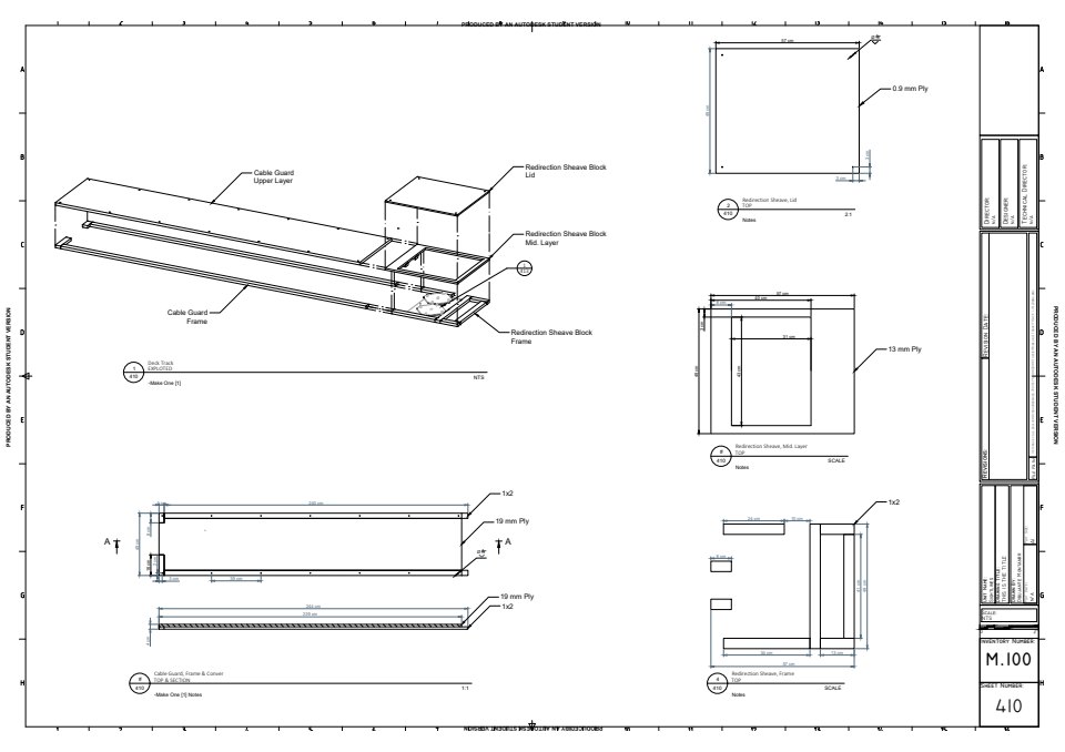
Deck Winch
The design of this deck winch is a response to the need for moving a piece of scenery through the stage. Its fabrication needed to be low cost and easy to build. The final product was a simple, robust and reliable 2HP deck winch.
The unit was designed with the International System of Units (SI).
Role |
Tech. Design, Drafting & Build |
For |
Yale School of Drama |
Date |
May 2019 |
Type |
Technical Design |
/background(fff)/960x678.jpeg?auto=webp)


/background(fff)/960x678.jpeg?auto=webp)
/background(fff)/960x678.jpeg?auto=webp)
/background(fff)/960x678.jpeg?auto=webp)
/background(fff)/960x678.jpeg?auto=webp)
/background(fff)/960x678.jpeg?auto=webp)
/background(fff)/960x678.jpeg?auto=webp)
/background(fff)/960x678.jpeg?auto=webp)










