Gray Man
EN
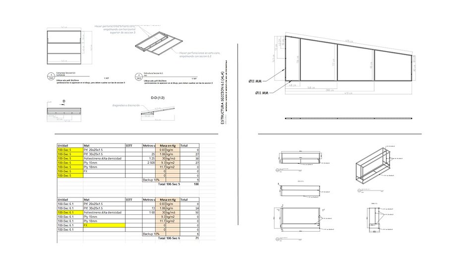
The project involved the technical design, build, and installation of a 7-meter long set piece. The commercial advertising included installing a plane with lights and effects on a Vespucio street marquee.
One of the biggest challenges I faced in this project was to develop a technical design that would guarantee that the scenic element remained in good condition both aesthetically and safe, under harsh weather conditions, for the entire 30-day activation period. The structural design needed to withstand rain, snow, and wind-generated loads. It was undoubtedly a challenging task that carried a great amount of responsibility, especially considering the number of people who, every day, pass by this important street.
ES
Diseño técnico y montaje de volumétrico de 7 metros de largo en letrero. La activación publicitaria consistió en la instalación de un avión, con luces y efectos, en una marquesina de calle Vespucio.
Un importante desafío que enfrenté en este proyecto fue el de desarrollar un diseño técnico que garantizara mantener este elemento escenográfico, en condiciones estéticas y de seguridad, en intemperie por los 30 días que duró la activación, teniendo que resistir cargas generadas tanto por las lluvias, nieve y viento. Sin duda un desafío que significó una gran responsabilidad con quienes transitan por una de las calles más concurridas de Chile.
Role |
Technical Director & Technical Designer |
For |
Espacio Checoeslovaquia – Lotus – Netflix |
Date |
2022 |
Type |
BTL |
URL |
espaciochecoeslovaquia.cl/proyectos/publicidad-el-hombre-gris/ |




















